Проект
Проект
Двухэтажный дом в финском стиле имеет красивый симметричный фасад и панорамное остекление гостиной на первом этаже. Планировка дома довольно удобная и современная. Кухня на первом этаже объединена со столовой с отдельным выходом на террасу, также на первом этаже расположена вместительная гостиная, санузел, котельная, спальня и кабинет. Наверху есть 2 небольшие спальни и 1 мастер – спальня с отдельным санузлом. Возможно исполнение планировки без второго света.
площадь
102 м²
2 ЭТАЖ
3 ЭТАЖ
1 ЭТАЖ
Good design is obvious. Great design is transparent.
У этого дома всего один этаж.
Good design is obvious. Great design is transparent.
1
Предварительная стоимость теплый контур
1
Предварительная стоимость под ключ
ОСНОВНОЙ КОНСТРУКТИВ ДОМА
Заводской комплект балок изготовленных в соответствии с проектом, обработанный огнебиозащитным составом. Двутавровая клееная профилированная балка 90х210 мм, наружные стены (Г-образная 145х175мм и Т-образная клееная профилированная балка 90х175 мм);межэтажное перекрытие (двутавровая клееная профилированная балка 90х210 мм);внутренние несущие стены (Г-образная 145х175мм и Т-образная клееная профилированная балка90х175 мм);(доска 45х95÷195 мм); перегородки (доска СС 45х95 мм). Стропильная система, доска СС 45х195 антисептированная
КРОВЛЯ
Металлическая модульная черепица Гётеборг Rooftop БАРХАТ (Matt) RAL7024 0,5мм Zn180 , элементы кровли, доборные элементы, снегозадержатели трубчатые, AQUAVENT 110 диффузионная мембрана 110 гр./кв.м. 1,5х50м (75кв.м.), AQUAVENT BAND DUO соединительная двухсторонняя лента 0,04х25м , Утеплитель Umatex Termo 200 мм, Пароизоляция Delta Dawi, специальный скотч Delta для проклейки швов, для пароизоляции, Имитация бруса 21*146*6000мм Хвоя АВ, карельский профиль, шлифованный, с покраской на заводе, для чистовой отделки потолков, вентиляционные выходы Vilpe, водосточная система Aquasystem, доска сухая строганная завальцованная сорт АВ с покраской Ral на подшив свесов и лобовую доску
НАРУЖНЫЕ СТЕНЫ
Имитация бруса 21*146*6000мм Хвоя АВ, карельский профиль, поднятый ворс, с покраской на заводе, без скрытого крепежа, плита Белтермо ТОП 25х590х2490 мм шип-паз ветрозащитная, Утеплитель Umatex Termo 150 мм, Пароизоляция Delta Dawi, специальный скотч Delta для проклейки швов, для пароизоляции
ФУНДАМЕНТ
Сваи ж/б 150х150х4000, металлические оголовки, доска антисептированная ест. влажности 50х200 на обвязку
ПЕРЕГОРОДКИ
Утеплитель Umatex Termo 150 мм, Пароизоляция Delta Dawi, специальный скотч Delta для проклейки швов, для пароизоляции , Имитация бруса 21*146*6000мм Хвоя АВ, карельский профиль, шлифованный, с покраской на заводе, для чистовой отделки стен внутри
ЦОКОЛЬНОЕ ПЕРЕКРЫТИЕ
Сетка от грызунов, AQUAVENT 110 диффузионная мембрана 110 гр./кв.м, Утеплитель Umatex Termo 200 мм, Пароизоляция Delta Dawi, специальный скотч Delta для проклейки швов, для пароизоляции, Черновые полы Фанера ФК 12х1525х1525 мм сорт 4/4 нешлифованная 2 слоя
МЕЖЭТАЖНОЕ ПЕРЕКРЫТИЕ
Утеплитель Umatex Termo 150 мм, Пароизоляция Delta Dawi, специальный скотч Delta для проклейки швов, для пароизоляции , Имитация бруса 21*146*6000мм Хвоя АВ, карельский профиль, шлифованный, с покраской на заводе, для чистовой отделки потолка перекрытия, Черновые полы Фанера ФК 12х1525х1525 мм сорт 4/4 нешлифованная 2 слоя
ПОЛЫ
Ламинат 33 класс толщина 10 мм с фаской, плинтус ПВХ, подложка. Керамогранит Cersanit на отделку полов в мокрых зонах
ОКНА
ПВХ профиль Veka 70, белый, двухкамерный стеклопакет/ Панорамное остекленние с закалкой
ДВЕРИ
Межкомнатные Veldoris с замком и петлями, Входная металлическая с терморазрывом Mastino Титан
ТЕРРАСЫ
Террасная доска Палубная окрашенная 28*120*6000мм Террасное масло Шлифованная Хвоя АВ
ЦОКОЛЬ
Панель фасадная Альта-Профиль Фагот Эко 1170х450 мм
ЭЛЕКТРОМОНТАЖНОЕ ОБОРУДОВАНИЕ
Электромонтажное оборудование (Щит распределительный пластиковый, Кабель ВВГПнг, Труба гофрированная ПВХ, Соединительная шина типа PIN трехфазная, ИЭК Автоматические выключатели, Комплект наконечников и крепежа, Комплект заземления). Выводы под электроприборы (розетка 2 шт на помещение, вывод свет-1шт на помещение, вывод выкл 1 шт. на помещение). Конечные электроприборы Systeme Electric
ИНЖЕНЕРНОЕ ОБОРУДОВАНИЕ
Внутренняя система ХВС, ГВС, Канализация, Радиаторное отопление (Трубы из сшитого полиэтилена Pex-a, коллектор из нержавеющей стали Stout, расширительный бак Stout, краны Stout, теплоизоляция труб, радиаторы отопления ROMMER, без теплых полов, котел электрический или газовый Baxi, Водонагреватель Termex, канализационные трубы Ostendorf). , Конечные сантехнические приборы Cersanit: унитаз Компакт NATURE Clean On 011 3/5 DP L EO slim, Раковина мебельная COMO 60,Тумба COLOUR 60, Смеситель для раковины BRASKO однорычажный, Душевая кабина 90x90 низкий поддон или Ванна прямоугольная LORENA 160*70,Рама для ванны LORENA 160 , Панель для ванны фронтальная UNIVERSAL TYPE 1 160 ,Душевой гарнитур LARA хром круглый,Смеситель BRASKO для ванны хром
Cпецификация
Бесплатная консультация
Объединяем опыт и технологии – строим дома быстрее и надёжнее

M 78

12 516 090 ₽
10512778,00
р.
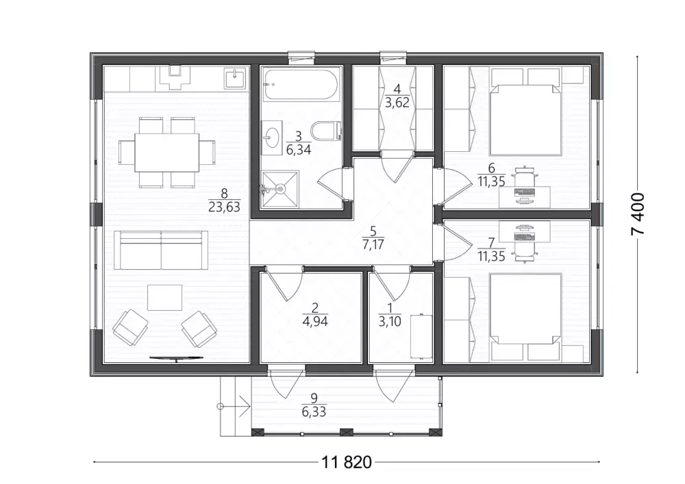
Одноэтажный дом в современном стиле. Эргономичный проект, в котором продуман каждый метр. Сочетание традиционных и современных элементов, делает дом визуально привлекательным, с оптимальным использованием пространства жилых и хозяйственных зон. Такой дом подарит ощущение свободы и спокойствия, а также гармонично впишется в любой ландшафт.

площадь: 77,83 М2

спальни: 2

санузел: 1

1 ЭТАЖ

1 ЭТАЖ

  • Общая площадь - 77,83 м²
  • Прихожая - 3,10 м²
  • Хоз. помещение - 4,94 м²
  • Санузел - 6,34 м²
  • Кладовая - 3,62 м²
  • Холл - 7,17 м²
  • Спальня - 11,35 м²
  • Спальня - 11,35 м²
  • Кухня-гостиная - 23,63 м²
  • Крыльцо - 6,33 м²

Made on
Tilda